
Molière street
Extension et surélévation d’une maison ancienne.
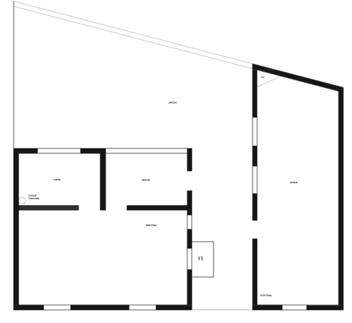
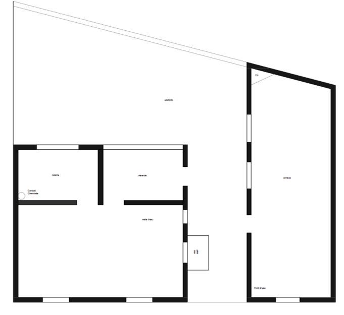
2 petites maisons édifiées sur un terrain de 171 m² à Montreuil.
Le projet consiste à agrandir la surface habitable en reliant les combles perdus et le sous-sol à la maison principale, à surélever la toiture qui est à remplacer et à créer une petite extension pour réunir les 2 bâtiments.
Un gros cahier des charges pour un budget travaux limité.





































